Structural Inspection & Repair

Structural Inspection and Repair

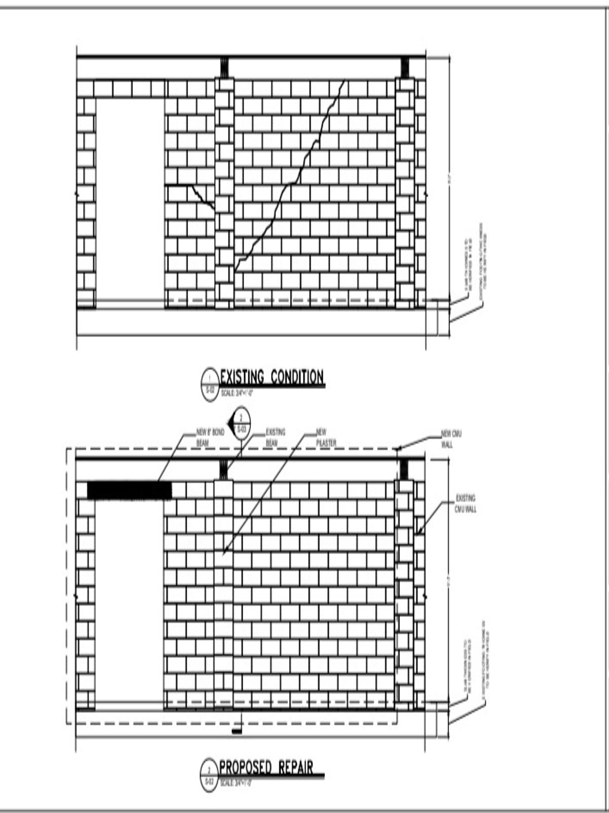
We provide expert structural inspection and repair services for residential and commercial buildings, including homes, apartment buildings, and warehouses. Whether you're addressing visible damage, planning renovations, or responding to a report, we assess the structure, identify the cause of the issue, and design safe, lasting repairs. Our inspections focus on structural concerns such as cracks, settlement, sloping floors, and damage caused by water infiltration. We also provide structural letters, load evaluations, and post-event assessments when needed. With our thorough analysis and practical solutions, you can make informed decisions about your property with confidence.

What we do

  • Structural inspections for damage, renovation, or real estate due diligence
  • Pre-purchase inspections specifically for homebuyers
  • Assessment of cracks, settlement, structural movement, and water-related damage
  • Structural repair design for foundations, beams, columns, framing, decks, balconies, and retaining walls.
  • Reports and structural letters for permits, closings, and change-of-use applications
  • Load evaluations for solar panels, rooftop units, and other equipment
  • Emergency and post-storm assessments for residential and commercial buildings
  • Construction support and follow-up inspections to confirm proper repairs

Get Contacted

Please fill in the details below to be contacted by our team for your project.